İşveren: Efeler Belediyesi
Tarih: 2016
Yer: Aydın
Alan: 32.937 m²
Ekip: Eymen Çağatay Bilge (Mimar), Bahri Yüksel (Mimar), Muhammed Ali Arslan (Mimar), Cansu Çekli (Mimar), Osman Yüksel (Mimar), Ümit Işık (Mimar)
Bir milyonu aşkın nüfusuyla, 8.007 km2 yüzölçümlüyle Ege Bölgesi’nde, İzmir ve Manisa’dan sonra 3. büyük il konumunda olan Aydın; tarım, turizm ve sanayi sektörlerindeki potansiyeli ve vasıflı insan gücüyle Ege Bölgesi ve ülkemizin hızla gelişen kentlerindendir. Herodot’un “Gökyüzünün altındaki en güzel yeryüzü” olarak nitelendirdiği bu şehir; Akdeniz ikliminin etkisi, sahip olduğu topraklar ve su kaynaklarının zenginliği sayesinde her türlü bitkisel üretimin yapılması için önemli bir tarım potansiyeline sahiptir.
Yarışma Alanı
Aydın’ın tam olarak merkezi denilebilecek bir konumda, İzmir-Denizli karayoluna komşu, öncesinde otogar olarak kullanılan alanda Efeler belediyesi Hizmet Binası istenmiştir. Alanın yaklaşık 300 metre doğusunda kentin en yoğun, işlek ve popüler bulvarı olan Adnan Menderes Bulvarı 200 metre batısında Sağlık caddesi bulunmakta, alanın kuzey cephesinden geçen Garaj caddesi bu iki önemli aksı birleştirmektedir. Sahip olduğu bu özellikler ile proje alanı kamusal kullanım açısından büyük potansiyeller taşımaktadır.

Kentsel kararlar, öneriler
Yeni çevre yolunun tamamlanmasıyla İzmir-Denizli karayolunun yavaşlatılması ve Aydın’a bu aksta bisiklet yolu kazandırılması önerilmektedir. Ayrıca Doğuda Forum Aydın, Tekstil Fabrikası merkezde Efeler Belediye hizmet binası ile bu yolun kültürel bir aksa dönüşmesi planlanmaktadır. Alanın kuzeyindeki haftanın belirli günleri semt pazarı kurulan Garaj Caddesi ise Aydın’ın en işlek caddesi olan Adnan Menderes Bulvarına bağlanmakta ve yolun yayalaştırılması bakımından güçlü bir potansiyel taşımaktadır.
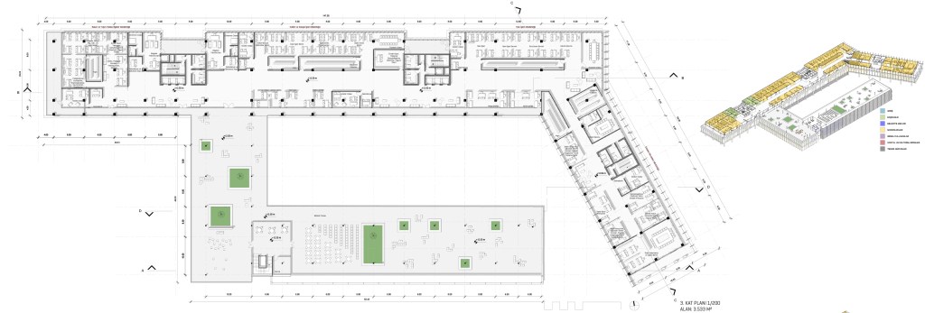
Yapı, Kütle oluşumu ve konumlanması
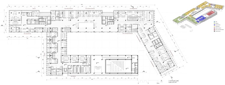
Doğu- Batı aksı doğrultusundaki arazi üzerinde konumlanan yapı tüm çizgilerini çevredeki referanslardan ve iklimden almaya çalışmıştır. . Doğu-Batı aksına uzanan parsel, yapı formunun iklime uygun oluşmasına izin vermektedir. Yazları çok sıcak ve nemli geçen bu bölgede doğal iklimlendirmenin olmadığı bir yapı, peyzaj düşünülemezdi. Yapı ortasında çökertilmiş avlu ile kamusal alanı maksimize etmeyi ve olabildiğince fazla belediye biriminin ışık almasını sağlamıştır. Aynı zamanda bu çökertilmiş avlu yapının fazla yükselmesini önlemekte ve çevre yapıların ölçeğini yakalamayı amaçlamaktadır. Yapı, ana girişi İzmir Denizli Karayolunda bir cep oluşturarak trafiği aksatmayacak şekilde düşünülmüştür. Güneybatı köşesinde çekme mesafesinin 25 metre olması buranın ana giriş ve belediye ön meydan fikrini güçlendirmekte ve aynı zamanda açık-kapalı otopark ve başkanlığa giriş
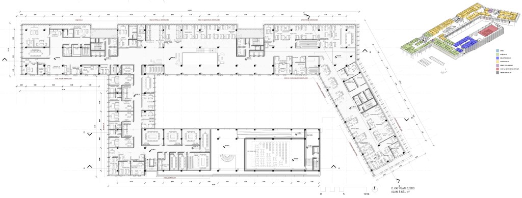
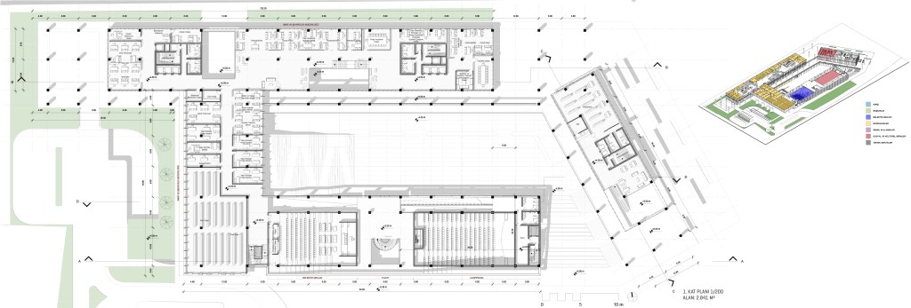
sağlamaktadır. Güneye bakan cepheye kültürel aksı güçlendirmek ve beslemek için konferans salonu, çok amaçlı salon ve belediye meclisi gibi birimler koyulmuştur. Kent Belleği ve sergi salonu, Aydının Sanat galerisine dönüşebilecek şekilde -4.50 kotunda zeminden ışık ve vista alan konferans salonu fuayesi ile bütünleşen ve çökertilmiş meydana açılan bir biçimde tasarlanmıştır. Fuaye üst fuayelerle birleşip çok amaçlı salon ve meclis salonuna bağlanmaktadır. Ayrıca bu kütlenin terasına fuayeden direk bir çekirdekle ulaşımı sağlanıp saçak altında etkinlik terası oluşturulmuştur. Bu teras, konferans Salonu, çok amaçlı salon ve meclise hizmet edip bazı etkinliklerin burada düzenlenmesini desteklemektedir. Yapının doğusunda 42 metre yükseklikte ticari parsel bulunması sebebiyle yapının doğu kısmı içeri çekilmiştir. Burada yayalar için bir iç sokak oluşyutulmuş veaynı zamanda İleride oluşacak bu yapıyı da beslemesi için ticari birimler kreş ve kütüphane burada düşünülmüştür. Belediye Hizmet binasının zemin katı kentlinin sıklıkla kullanacağı serbest bir dolaşıma olanak tanıyacak şekilde bir kamusal geçiş alanı olarak tasarlanmıştır. Garaj caddesi ve İzmir yolunu korunaklı bir şekilde Arkad altından geçişini sağlamakla birlikte tüm açık bekleme, durak ve dolaşım alanlarının güneş korunumlu olmasına dikkat edilmiştir. Yapının garaj caddesine bakan yüzünde çevre yapılar ile ilişkiyi korumak ve perspektifi güçlendirmek için çekirdek bölgeleri geriye çekilmiş, yapı yatay yönde fragmente edilmiş ve çevre yapıların ölçeğini yakalaması amaçlanmıştır.
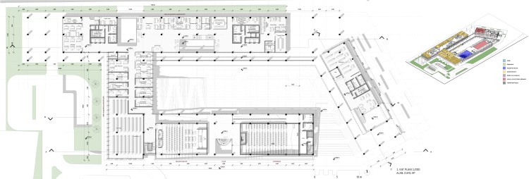
Yapının Güneydoğu köşesinde açılan yarık çökertilmiş meydana vista sağlamakta, Kafeterya ve kütüphane birimlerinin duraklama noktasını oluşturmakta ve Belediye için ikinci giriş sağlamaktadır.
Sürdürülebilirlik
Araziye yerleşim ve kütle oluşumunda, bahsedildiği üzere sürdürülebilirlik verilen kararlarda önemli rol oynamıştır. Sürdürülebilirliği bir mimari akım ya da moda olarak değil bir zorunluluk ve yaşam mücadelesi olarak görüyoruz. Kütlenin oluşumu ve cephenin şekillenmesinde sürdürülebilirlik önemli rol oynamıştır. Doğu-Batı cephesi minimize edilmiş, yapı avlulu bir şekilde düşünülüp çarpraz havalandırma sağlanmıştır. Ofis bloğunda mekanlara saf kuzey ışığı alınıp Güney cephesinde ise yapı bir kat geri çekilip teraslanarak yazın güneşten korunup kışın ise güneşlenmeyi sağlamaktadır. Teraslanan bu birimlerde Belediyenin açık ofis birimleri çözülerek iç-dış mekan ilişkisinin güçlendirilmesi amaçlanmıştır. Kültürel birimleri oluşturan ve Anayola komşu Güney cephesi ise ikinci cidarını oluşturup trombe duvarı olarak çalışmaktadır. Bu duvar yazın güneş kırıcı ve açılır kanatları ile çapraz havalandırma sağlayacak kışın ise yapının ısınma ihtiyacını büyük ölçüde karşılaması düşünülmektedir.



































